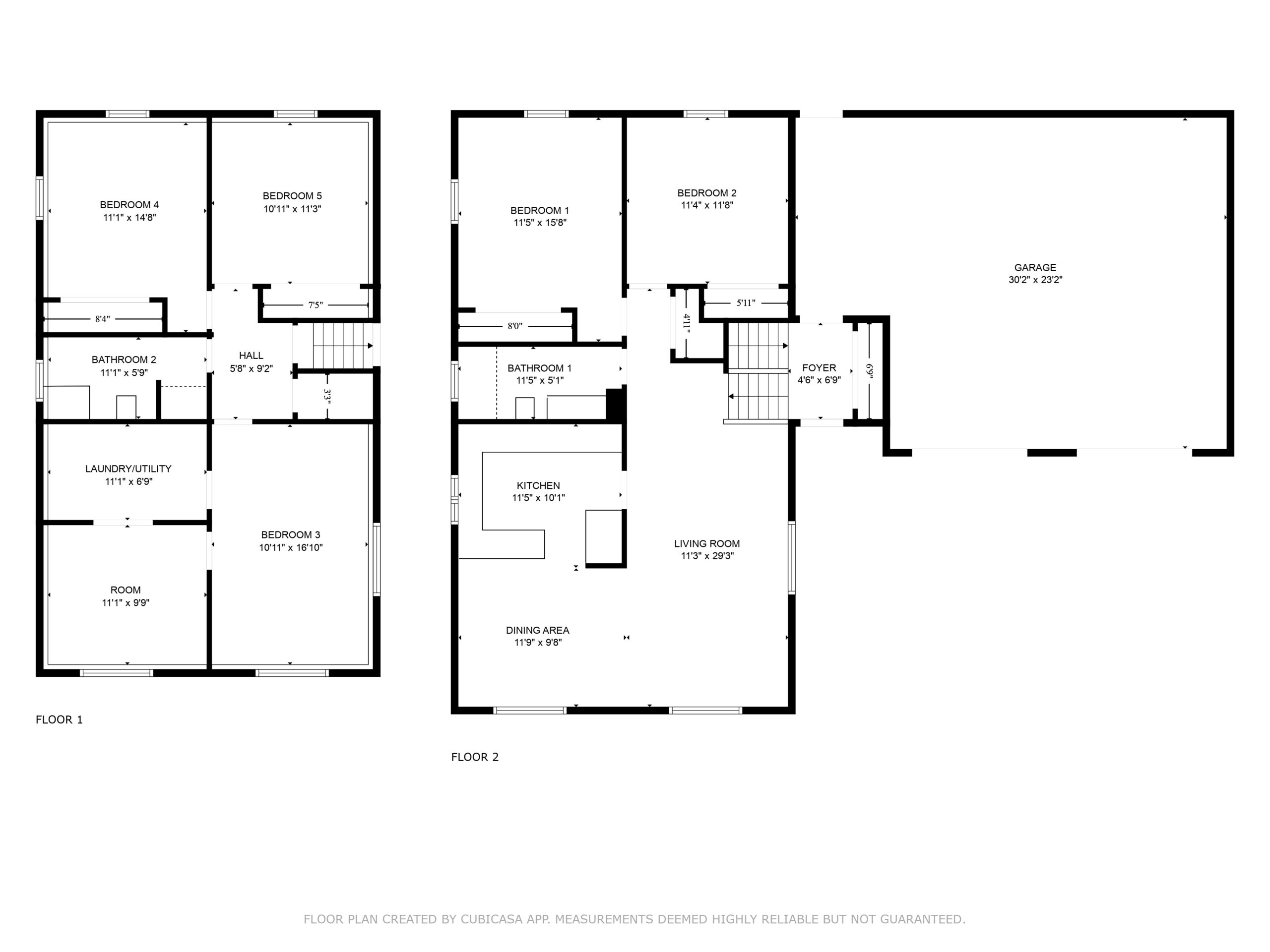
5-bedroom 2-bath split-level house close to MSU in Mankato has laundry, central air conditioning, and an oversized 2-stall garage. Large backyard, natural light, dining area, and large kitchen.
**Leasing price of $2,495 with $200 monthly rent deduction if tenant maintains lawn/snow care**
Other
- Address: 31 Devonshire Pl, Mankato, MN 56001, USA
- Available Date: August 1st, 2026
- Type Of Unit: House, 5 bedrooms, 2 bathrooms
- Rent Details: Licensed for up to 5 unrelated adults or single family
- Rent: $2,295 per month
- Deposit: $2,495 (refundable, due at lease signing)
- Lease Info: 12 month lease
- Utility Info: Tenant pays water, trash, electric, and gas
- Floor Levels: Split level
-
Pets Allowed:
Allowed at $50/month per pet, plus $80 non-refundable pet application fee; must be at least 1yr old
- Amenities: Washer / dryer (in unit), dishwasher, carpet, central air, oversized 2 stall garage, close to parks, schools, restaurants and shopping




























